
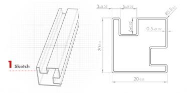
You provide us with your idea as a sketch.

Based on the sketch, our engineers create a 3D model with an approval drawing including the desired dimensions of the sample.

With the drawing as a basis, the suitable pre-material can be optimised

In a series of tests the necessary drawing steps are determined.

We accompany you from the initial idea to the completed product solution.